ZONA PASCHE' - ALLOGGIO MANSARDATO DI NUOVA COSTRUZIONE

Avigliana (Torino)

Rif: IMMO-110959583
Condividi Linkedin Whatsapp Stampa
€ 180.000
Appartamento
90 Mq
3 Vani
Classe energetica A1
2 Camere
2 Bagni
Ascensore
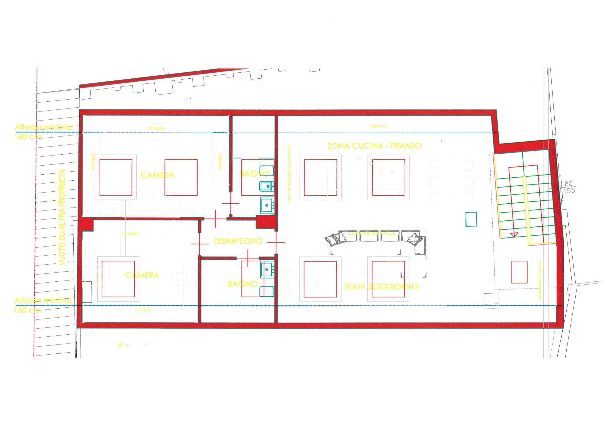
Nell'incantevole cornice del basso centro storico di Avigliana e più precisamente nella zona del Paschè comoda a tutti i servizi di prima necessità proponiamo alloggio di nuova costruzione situato al terzo ed ultimo piano mansardato di una piccola palazzina dotata di ascensore che però non arriva al piano dell'alloggio e di conseguenza c'è la necessità di fare un paio di rampe di scale a piedi per raggiungerlo. L'immobile si compone di un'ampia zona giorno dove la cucina, la sala da pranzo ed il soggiorno si fondono in un unico ambiente molto ampio. Le camere da letto sono due di cui una dotata di bagno. Un secondo bagno completa la proprietà. Il riscaldamento è semiautonomo a radiatori con caldaia ibrida a metano supportata da pannelli fotovoltaici condominiali. Possibilità di personalizzazioni interne e scelta materiali.

Dettaglio immobile

Contratto Vendita
Rif IMMO-110959583
Prezzo € 180.000
Provincia Torino
Comune Avigliana
Indirizzo Corso Laghi
Superficie 90 mq
Vani 3
Camere 2
Bagni 2
Classe energetica A1 (DL 90/2013)
EPgl,nren 47,36 kwh/m2 anno
Piano 3 / 3
Riscaldamento centralizzato
Condizioni nuova costruzione
Anno di costruzione 2024
Ascensore si
Cucina a vista
Mansarda 90 mq

Consistenze

Descrizione Superficie Sup. comm.
Principali
Mansarda - 3° piano 90 Mq 90 Mqc
Totale 90 Mqc

Video

Planimetrie

Richiedi maggiori informazioni

Autorizzazione al trattamento dei dati personali+
Dichiaro di aver letto l'informativa sulla privacy ed accetto le condizioni d'utilizzo del servizio.
Riempi il campo con il codice riportato nell'immagine*
Codice Captcha
Chiamaci Contattaci